Ingatlan bemutatása

II. kerületben, Zöldmál és Vérhalom határán panorámás, földszinti, 135 nm-es kertkapcsolatos lakás bútorozottan kiadó. A lakás egy teljes szintet foglal el. Tágas nappali kandallóval, 3 hálószoba beépített szekrényekkel, 2 fürdőszoba (1 zuhanyzós, 1 kádas). A társasházban összesen 3 lakás van, mindegyik külön szinten, így nincs áthallás, teljesen szeparált.
A lakáshoz tartozik 2 teremgarázs beálló.

Közös költség: 85.000 Ft, mely tartalmazza a fűtést, vizet, gázt.

Kisállat nem hozható.
--------------------
** Műszaki paraméterek és extrák:
- 2 rétegű műanyag nyílászárók,
- klíma,
- kandalló,
- beépített gardróbszekrények,
- beépített konyhai gépek,
- riasztórendszer,
- redőnyök,
- kamerás kaputelefon.
--------------------
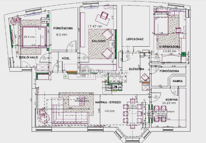
LAKÁS: 135 nm
- nappali-étkező: 44 nm
- konyha: 11 nm
- spájz: 1 nm
- hálószoba: 16 nm
- hálószoba: 19 nm
- hálószoba: 15 nm
- fürdőszoba: 9 nm
- fürdőszoba: 4 nm
- előtér: 8 nm

--------------------
Az ingatlan tömegközlekedéstől pár perces gyalogtávolságra helyezkedik el (11,111, 29-es busz) a Széll Kálmán tér 15 perc alatt elérhető. Bevásárlási lehetőség pár percre gyalogosan a Rózsadomb Center és Rózsakert Bevásárlóközpont.

Elhelyezkedés

Az ingatlanok adatbázisunkban szereplő adatai tájékoztató jellegűek, azokat megbízóink adatszolgáltatása és az ingatlan-nyilvántartásban rögzített közhiteles információk alapján rögzítettük honlapunkon. Felhívjuk a figyelmet arra, hogy az adatbázisban közölt adatok és paraméterek (különösen a feltüntetett alapterületek, helyiséglisták) a tényleges, illetve a helyszínen mérhető adatoktól eltérhetnek, az esetleges eltérésért felelősséget nem vállalunk.